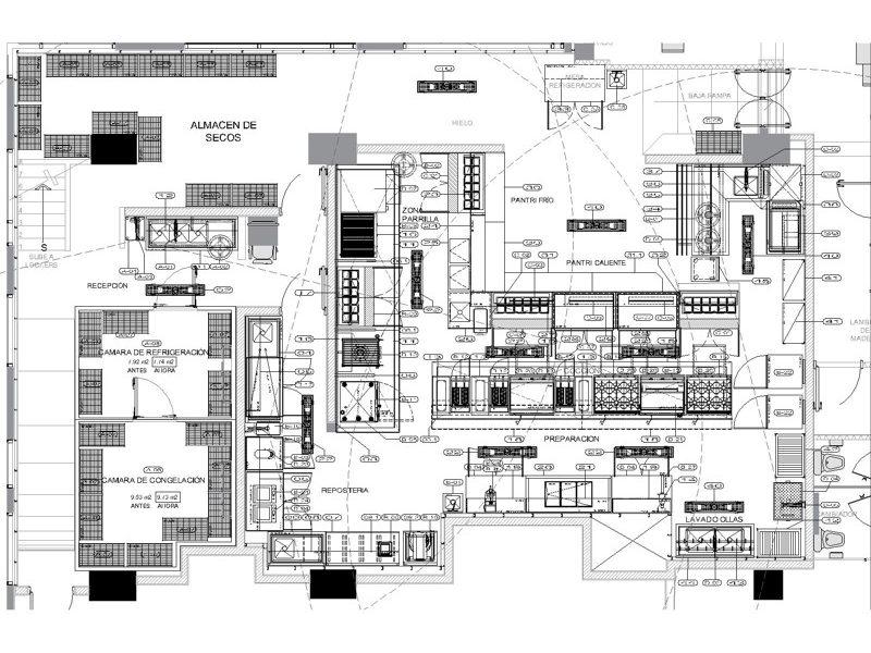
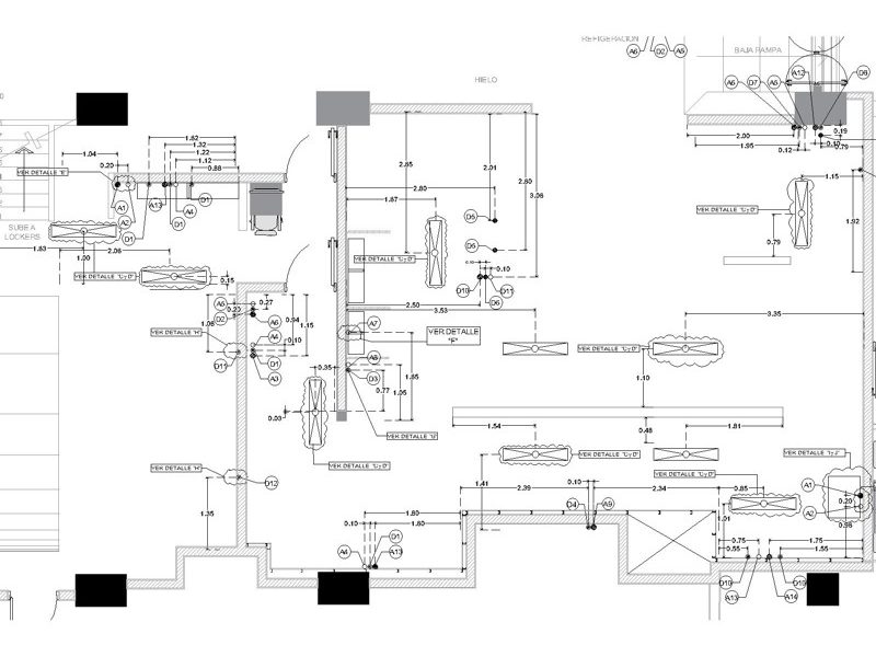
Levantamiento Físico en Obra:
Lo que bien comienza bien termina y esto justamente es para descartar cualquier error de planificación directamente en obra nosotros nos coordinamos con su constructor para que todo valla de acuerdo al proyecto tomando medidas físicas de cada muro.











